Если цена в объявлении изменится, мы сразу сообщим вам об этом на электронную почту.
Нажимая «Подписаться», вы соглашаетесь с правилами.
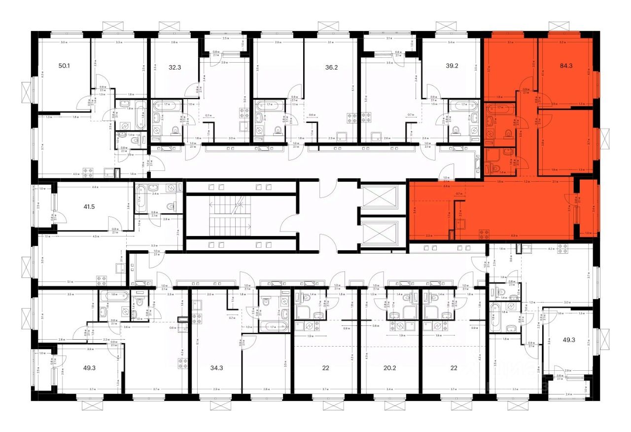
продам 3-к, 50 лет Октября, 263/211 650 800 ₽
8 мая 2025
Дата публикации объявления
Обн. 14 мая
Дата обновления объявления
1
Количество просмотров (+ просмотры за сегодня)
Спецпредложение
Турбо x8
138 700 ₽/м²
Чистая продажа
Термин "Чистая продажа" означает, что в квартире никто не прописан или
есть куда выписаться и вывезти вещи. Это лучший вариант для покупателя.
Вероятность срыва сделки минимальна.
Продаётся 3-комн. квартира площадью 84 кв.м на 12 этаже 16 этажного дома (Корпус 4, Секция 1) проекта ПИК Зея парк. Светлый просторный подъезд на уровне земли, функциональная планировка, большие окна, без отделки.
''Зея парк'' - новый квартал со всем необходимым для комфортной жизни. До центра Благовещенска - 15 минут.
Внутри ''Зея парка'' много места для тихих прогулок и активного отдыха. В каждом дворе будет парк с детскими и спортивными площадками. Рядом с домами пройдёт широкий пешеходный бульвар, где мы установим удобные скамейки и высадим кустарники и цветы и взрослые деревья.
В квартиры и дворы сможет беспрепятственно проникать солнце благодаря переменной высоте корпусов - 9 и 16 этажей.
Продаётся 3-комн. квартира площадью 84 кв.м на 12 этаже 16 этажного дома (Корпус 4, Секция 1) проекта ПИК Зея парк. Светлый просторный подъезд на уровне земли, функциональная планировка, большие окна, без отделки.
''Зея парк'' - новый квартал со всем необходимым для комфортной жизни. До центра Благовещенска - 15 минут.
Внутри ''Зея парка'' много места для тихих прогулок и активного отдыха. В каждом дворе будет парк с детскими и спортивными площадками. Рядом с домами пройдёт широкий пешеходный бульвар, где мы установим удобные скамейки и высадим кустарники и цветы и взрослые деревья.
В квартиры и дворы сможет беспрепятственно проникать солнце благодаря переменной высоте корпусов - 9 и 16 этажей. В домах будут просторные и светлые подъезды с дизайнерской отделкой, витражным остеклением и двумя выходами на уровне земли: во двор и на улицу.
В квартирах большие окна, застеклённые балконы и лоджии — будет светло и уютно даже зимой. Все квартиры сдаются с предчистовой отделкой: самые грязные и шумные работы к моменту выдачи ключей уже закончатся.
На первых этажах домов разместятся магазины, кафе и другие сервисы, а на подземных — индивидуальные кладовые. В 1013 минутах пути на машине — парк Дружбы, аквапарк ''Плаза'' и ТРЦ ''Острова''. Рядом с жилым кварталом есть автобусная остановка, от которой можно добраться в любую часть города. Артикуль 887871 (ООО ''СЗ ''ПИК Благовещенск'')