Если цена в объявлении изменится, мы сразу сообщим вам об этом на электронную почту.
Нажимая «Подписаться», вы соглашаетесь с правилами.
продам дом, Гаюнова, 84 000 000 ₽
24 окт
Дата публикации объявления
Обн. 22 мая
Дата обновления объявления
58 824 ₽/м²
Чистая продажа
Термин "Чистая продажа" означает, что в квартире никто не прописан или
есть куда выписаться и вывезти вещи. Это лучший вариант для покупателя.
Вероятность срыва сделки минимальна.
Этажей1
Площадь участка11 соток
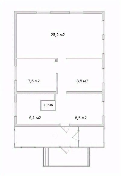
Общая площадь68 м2
Материал домадерево
ЭлектричествоЕсть
Газоснабжениенет
Агентство недвижимости Монополия предлагает к продаже дом с земельным участком по адресу: Гаюнова, дом 8.
Подробнее о доме: - Общая площадь: 68 кв.м., - Дом крепкий, бревенчатый, обшит металло-сайдингом, - Вода в доме! (Насосная станция), - Высота потолков 2.70 м, - Окна МПО установлены во всем доме, - Натяжные потолки, - Отопление печное (водяное).
Подробнее об участке: - Двор забетонирован, - Имеется большой кирпичный гараж 4*6 кв.м., летняя кухня 4.17*4.8 кв.м., - Площадь земельного участка 10.7 соток, почва плодородная, вне зоны подтопления, имеются плодово-ягодные насаждения, - Отличный подъезд к участку, широкая улица, - Автобусная остановка неподалеку, магазин Каменный.
Агентство недвижимости Монополия предлагает к продаже дом с земельным участком по адресу: Гаюнова, дом 8.
Подробнее о доме: - Общая площадь: 68 кв.м., - Дом крепкий, бревенчатый, обшит металло-сайдингом, - Вода в доме! (Насосная станция), - Высота потолков 2.70 м, - Окна МПО установлены во всем доме, - Натяжные потолки, - Отопление печное (водяное).
Подробнее об участке: - Двор забетонирован, - Имеется большой кирпичный гараж 4*6 кв.м., летняя кухня 4.17*4.8 кв.м., - Площадь земельного участка 10.7 соток, почва плодородная, вне зоны подтопления, имеются плодово-ягодные насаждения, - Отличный подъезд к участку, широкая улица, - Автобусная остановка неподалеку, магазин Каменный.
Весь процесс, от момента выбора объекта недвижимости, рекламы объекта и до завершения сделки осуществляется через компанию Монополия и полностью контролируется специалистами компании: -Компания занимается продажей недвижимости более 19 лет, -Мы подарили семейный очаг более 5000 людей, Мы гордимся своим безупречным опытом и репутацией, -Наша компания страхует все сделки от рисков потери недвижимости. Мы заботимся не только о себе, но и о своих клиентах.