Если цена в объявлении изменится, мы сразу сообщим вам об этом на электронную почту.
Нажимая «Подписаться», вы соглашаетесь с правилами.
продам дом, с. Волково (Благовещенский район)7 990 000 ₽
20 янв
Дата публикации объявления
Обн. 3 апр
Дата обновления объявления
1
Количество просмотров (+ просмотры за сегодня)
95 119 ₽/м²
Чистая продажа
Термин "Чистая продажа" означает, что в квартире никто не прописан или
есть куда выписаться и вывезти вещи. Это лучший вариант для покупателя.
Вероятность срыва сделки минимальна.
Этажей1
Площадь участка8 соток
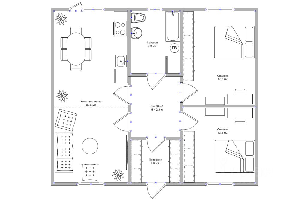
Общая площадь84 м2
Материал домакирпич
ЭлектричествоЕсть
Арт. 84948560. Дом площадью 84 м2, на участке земли 8.5 соток, находится в с. Волково, в районе улицы Тихая. Дорога в город занимает всего 17 минут по новому мосту до улицы Горького - Фундамент - ротсверк сваи 350мм, лента 400 на 450 мм - Стены - кирпич, ППС 17см, вент. фасад, металло-сайдинг - Кровля - профлист - Высота потолков - 2,9 м - Вода - скважина 20м - Отопление - конвекторы - Электричество 380В, 15кВт - Септик - 5 м куб. Хорошая входная дверь с терморазрывом Энергоэффектиность дома очень высокая В продаже 5 идентичных домов Дом подходит по все виды ипотек, поможем оформить ипотеку на выгодных условиях без визита в банк!
Арт. 84948560. Дом площадью 84 м2, на участке земли 8.5 соток, находится в с. Волково, в районе улицы Тихая. Дорога в город занимает всего 17 минут по новому мосту до улицы Горького - Фундамент - ротсверк сваи 350мм, лента 400 на 450 мм - Стены - кирпич, ППС 17см, вент. фасад, металло-сайдинг - Кровля - профлист - Высота потолков - 2,9 м - Вода - скважина 20м - Отопление - конвекторы - Электричество 380В, 15кВт - Септик - 5 м куб. Хорошая входная дверь с терморазрывом Энергоэффектиность дома очень высокая В продаже 5 идентичных домов Дом подходит по все виды ипотек, поможем оформить ипотеку на выгодных условиях без визита в банк! Компания ''Сделка'' входит в Амурскую Ассоциацию Риэлторов (ААР) и Российскую Гильдию Риэлторов (РГР).