logo
N1.RU — новая улучшенная версия Е1.Недвижимость
Чтобы вернуться на старый сайт Е1.Недвижимость, перейдите по ссылке в нижней части сайта N1.RU
  • Продажа
  • Аренда
  • Новостройки
  • Журнал
  • Компании
  • Шаблоны документов
  • Налоговый вычет
  • Еще
  • Личный кабинет
    • Регистрация на Циан
    • Серышево
  • Добавить объявление
Тип недвижимости
Серышево
Начните вводить или выберите объект в выпадающем списке
Тип помещения
Цена
  1. Недвижимость в Серышево
  2. Продажа
  3. Коммерческая
  4. 1 объявление

Продажа коммерческой недвижимости в Серышево

  • Универсальное помещение1
  • Магазин, выставочный зал1
За все время
Сортировка по умолчанию
СпискомСписком
ТаблицейТаблицей
На картеНа карте
Открыть поиск по карте

По вашему запросу объявлений не найдено

1/12
Универсальное помещение
Куйбышева, 29
 Показать на карте
Серышево
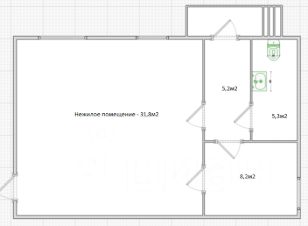
Выгодное предложение для вашего бизнеса в пгт. Серышево!Предлагается к продаже коммерческое помещение, расположенное по адресу: ул. Куйбышева, 29. Это удобное место для развития вашего дела в активно развивающемся посёлке!Локация:Помещение является пристройкой к 5-этажному кирпичному дому, построенному в 1982 году. Это обеспечивает стабильный поток потенциальных клиентов.Удобная транспортная доступность: всего 25-30 минут на автомобиле до города Белогорск. Расширьте горизонты своего бизнеса!Площадь и планировка:Общая площадь 50,5 м, полезная площадь 31,8 м.Высота потолков 2,85 м создает ощущение простора и свободы.В наличии санузел и подсобное помещение для комфортной работы. Бонусы:Ранее помещение использовалось под магазин.Всё оборудование, которое вы видите на фотографиях, остаётся новому владельцу! Это отличная возможность начать свой бизнес практически сразу, без дополнительных затрат. Гибкие условия:Рассматривается обмен на квартиру или автомобиль. Ваши предложения приветствуются!Не упустите шанс приобрести коммерческое помещение с отличным потенциалом в удобном месте! Пишите прямо сейчас, чтобы узнать подробности и договориться о просмотре!
50 м2
  • Показать контакты
  • Добавить в избранное
50 м2
1 700 000 
33 663 /м2
    Распечатать

    Вместе с этим также ищут:

    Купить помещение в Благовещенске Купить торговую площадь в Благовещенске Купить офис в Благовещенске Купить склад в Благовещенске Купить производственное помещение в Благовещенске Купить отдельностоящее здание в Благовещенске

    🏠 Как купить коммерческую недвижимость в Серышево на N1?

    • ✔ В поисках объявления о продаже или покупке коммерческой недвижимости в Серышево?
    • ✔ На N1 размещена 1 коммерческая недвижимость
    • ✔ Чтобы купить или продать недвижимость, воспользуйтесь формой поиска, фильтрами или быстрыми ссылками.

    💸 Сколько стоит коммерческая недвижимость в Серышево?

    • 🟢 Средняя цена продажи коммерческой недвижимости - 1,70 млн ₽
    • 🟢 Минимальная стоимость за 1 м2: 33,66 тыс ₽

    📚 Какая площадь коммерческой недвижимости?

    • Наибольшая площадь: 51 м²
    • Минимальная площадь: 51 м²