2-к, Красноармейская, 21 Показать на карте
Белогорск
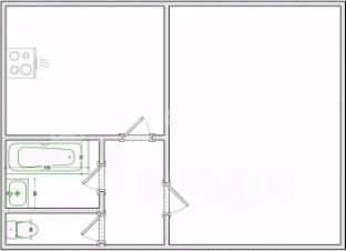
Продаётся двухкомнатная квартира на первом этаже в центральном районе города, представляющая собой отличную возможность для создания современного жилого или коммерческого пространства под индивидуальные задачи.Помещение полностью освобождено от старой отделки, проведен демонтаж, что позволяет новому владельцу сразу приступить к чистовому ремонту без дополнительных затрат и подготовительных работ. Планировка функциональна: комнаты изолированы, санузел раздельный, что обеспечивает комфортное проживание или рациональную организацию офиса. Установлены новые металлопластиковые окна, остекленная лоджия, новая входная металлическая дверь и кондиционер, что формирует надежную основу для будущего благоустройства.Ключевым преимуществом является выгодное расположение. Дом находится в шаговой доступности от всей необходимой инфраструктуры: детские сады, школы 1 и 17, городской парк и сквер для прогулок, отделение почты, магазины и кафе. Благоустроенный двор с детской площадкой и наличие свободных парковочных мест создают комфортную среду для жильцов. Прямой выход на первый этаж и статус центрального района открывают потенциал для использования помещения под коммерческие цели, такие как частный кабинет, салон или небольшой магазин. Транспортная доступность обеспечивает быструю связь с любым районом города. Этот объект идеально подходит для тех, кто ценит перспективу, выгодное местоположение и намерен реализовать собственный проект с чистого листа.Звоните и мы организуем показ этого идеального объекта! Код пользователя: 180337Номер в базе: 8932905
47 м2
1 / 5 этаж
Кирпич
- Показать контакты
- Добавить в избранное
47 м2
1 / 5 этаж
Кирпич
5 600 000
117 155 /м2
