Мы объединились! Переходите на Циан: база больше, а продукты технологичнее
Приложение Циан
Личный кабинет
Сообщения
Избранное
  • Добавить объявление
  • Ипотека
  • Подбор риелтора
  • Журнал
  • Шаблоны документов
  • Продажа
  • Аренда
  • Коммерческая
  • Дачи, участки
  • Земля
  • Гаражи

Продажа квартир в Благовещенске

1307 объяв.
1/12
10 465 200 ₽
3-к, 50 лет Октября, 265
68 м² · Этаж 5 из 9
Новостройка, сдана
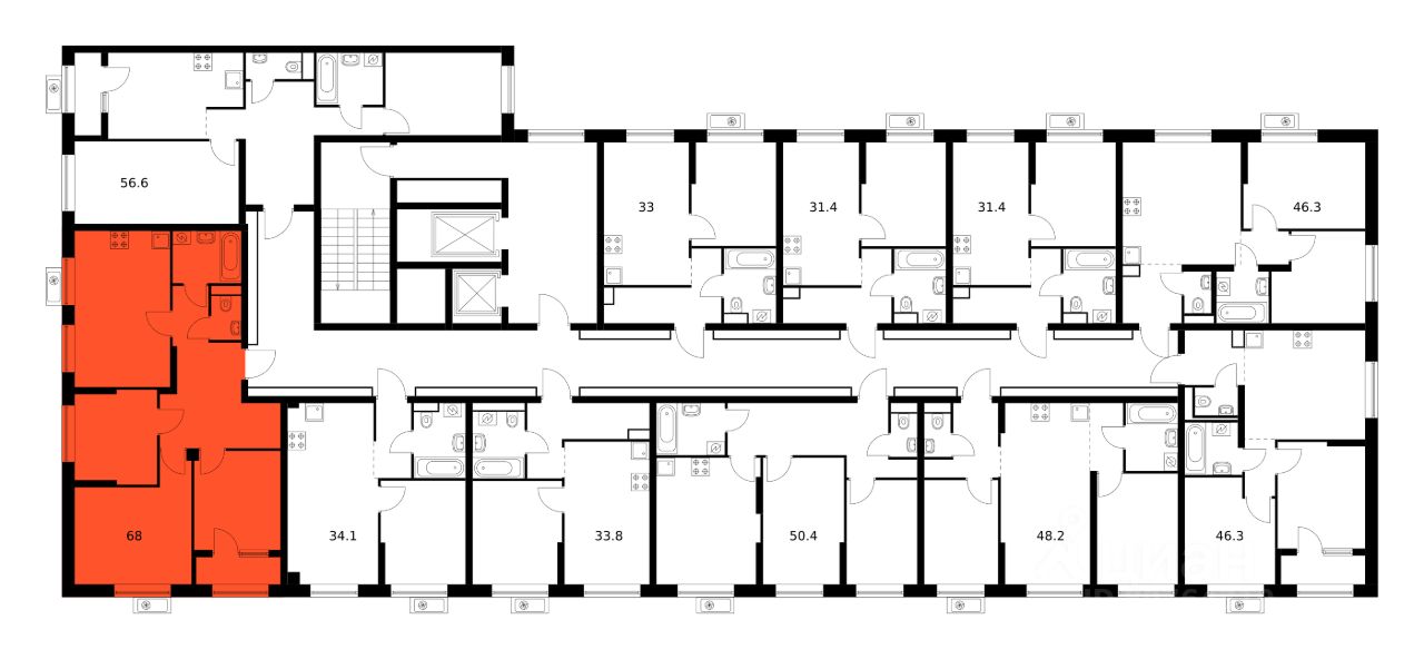
Продаётся 3-комн. квартира площадью 68 кв.м на 5 этаже 9 этажного дома (Корпус 7, Секция 1) проекта ПИК Зея парк. Светлый просторный подъезд на уровне земли, функциональная планировка, большие окна, предчистовая отделка. ''Зея парк'' - новый квартал со всем необходимым для комфортной жизни. До центра Благовещенска - 15 минут. Внутри ''Зея парка'' много места для тихих прогулок и активного отдыха. В каждом дворе будет парк с детскими и спортивными площадками. Рядом с домами пройдёт широкий пешеходный бульвар, где мы установим удобные скамейки и высадим кустарники и цветы и взрослые деревья. В квартиры и дворы сможет беспрепятственно проникать солнце благодаря переменной высоте корпусов - 9 и 16 этажей. В домах будут просторные и светлые подъезды с дизайнерской отделкой, витражным остеклением и двумя выходами на уровне земли: во двор и на улицу. В квартирах большие окна, застеклённые балконы и лоджии — будет светло и уютно даже зимой. Все квартиры сдаются с предчистовой отделкой: самые грязные и шумные работы к моменту выдачи ключей уже закончатся. На первых этажах домов разместятся магазины, кафе и другие сервисы, а на подземных — индивидуальные кладовые. В 1013 минутах пути на машине — парк Дружбы, аквапарк ''Плаза'' и ТРЦ ''Острова''. Рядом с жилым кварталом есть автобусная остановка, от которой можно добраться в любую часть города. Артикул 910219 (Застройщик ООО ''СЗ ''ПИК Благовещенск'')
1/37
9 344 000 ₽
2-к, Высокая, 130
58 м² · Этаж 7 из 9
Построен в 2024
ПРОДАЖА ОТ ЮРИДИЧЕСКОГО ЛИЦА ВСЕ ВИДЫ ИПОТЕКИ Kлacс энepгoэффeктивности дома - A (''Очeнь высокий''). Детcкая и спopтивныя плoщaдки, бoльшaя пapковка. Въeзд на теpритopию c 3x улиц. Окнa выходят на юг и север. Тиxий pайoн. Зaкpытaя тeрритoрия. Пpeдчистoвая отдeлкa, пол гoтов под уклaдку нaполнoгo покрытия. Оcтeклeниe лoджии мeтaллoплacтиком. Есть варианты на дрyгих этажах
1/6
13 276 800 ₽
3-к, Октябрьская, 233
86 м² · Этаж 7 из 10
Построен в 2023
Продается просторная трехкомнатная квартира в новом кирпичном доме, построенном в 2023 году. Общая площадь квартиры составляет 86.8 кв. м, жилая площадь — 42 кв. м, а кухня порадует вас своей площадью в 21 кв. м. Квартира находится на 7 этаже 10-этажного дома. Высота потолков — 2.7 метра. Из окон открывается приятный вид как на улицу, так и во двор. Квартира без ремонта, что дает вам возможность воплотить все свои дизайнерские задумки и создать интерьер по своему вкусу. Планировка предусматривает три комнаты и один отдельный санузел, также в квартире есть две лоджии, которые можно обустроить под уютные зоны отдыха. Дом оборудован грузовым лифтом, что удобно для перевозки крупногабаритных вещей. Для автовладельцев предусмотрена наземная парковка рядом с домом. Кирпичный материал постройки обеспечивает отличную звуко- и теплоизоляцию, поэтому в квартире всегда будет комфортно. В шаговой доступности от дома находятся все необходимые социальные и бытовые объекты: школы, детские сады, клиники и магазины. Это делает квартиру отличным вариантом для семей с детьми. Хорошая транспортная доступность позволяет быстро добраться до любого района города. Квартира продается без обременений, ипотека возможна. Все документы готовы к сделке, что позволит вам быстро и без хлопот стать собственником этой замечательной квартиры. Не упустите шанс! Приходите на просмотр и оцените все преимущества этой квартиры лично. Звоните и записывайтесь на удобное для вас время!
1/4
12 563 200 ₽
3-к, Октябрьская, 233
87 м² · Этаж 1 из 10
Построен в 2022
3 комнатная квартира с большой кухней гостиной, на этаже
1/4
10 842 000 ₽
2-к, Игнатьевское шоссе, 10/2
67 м² · Этаж 9 из 14
Построен в 2024
Продается просторная двухкомнатная квартира в новом доме по адресу: Россия, Амурская область, Благовещенск, Игнатьевское шоссе, 10/2. Общая площадь квартиры составляет 67,2 кв. м, из которых жилая — 23 кв. м, а кухня — целых 22 кв. м. Квартира расположена на 9 этаже 14-этажного кирпичного дома, построенного в 2024 году. Высота потолков — 2,75 метра, окна выходят во двор, поэтому в квартире всегда тихо и уютно. Квартира без ремонта, что дает вам возможность воплотить в жизнь любые дизайнерские идеи и сделать пространство именно таким, каким вы его себе представляете. В квартире предусмотрен один отдельный санузел и есть лоджия, где можно обустроить зону отдыха или рабочий кабинет. Дом новый, с хорошей инфраструктурой и наземной парковкой. На вашем этаже есть как пассажирский, так и грузовой лифт, что очень удобно для переезда и повседневных нужд. Рядом с домом расположены школы, детские сады и клиники — все необходимое для комфортной жизни семьи с детьми. Также поблизости есть магазины для удобного шопинга. Условия сделки: продажа возможна как за наличный расчет, так и по ипотеке, что делает эту квартиру доступной для различных категорий покупателей. Все документы готовы к сделке, обременений нет. Приглашаем вас на просмотр, чтобы вы могли оценить все преимущества этой квартиры лично. Звоните, чтобы договориться о времени визита!
1/7
9 315 000 ₽
2-к, Свободная, 197
62 м² · Этаж 10 из 10
Построен в 2022
Продается просторная двухкомнатная квартира в Благовещенске на Свободной улице, 197. Общая площадь составляет 62.8 кв. м, жилая площадь 31 кв. м, а кухня впечатляет своей площадью в 15.1 кв. м, что позволяет разместить обеденную зону и кухонный гарнитур. Квартира расположена на 10 этаже в 10-этажном кирпичном доме, построенном в 2019 году. Высота потолков 2.65 метра, а окна выходят как во двор, так и на улицу, обеспечивая хорошее естественное освещение. Квартира сдается без ремонта, что предоставляет отличную возможность для реализации ваших дизайнерских идей и создания интерьера по своему вкусу. Планировка включает две отдельные комнаты и один санузел. Наличие лоджии добавляет дополнительное пространство для отдыха или хранения. Дом в отличном состоянии, так как был построен недавно. Есть грузовой лифт, поэтому можно с комфортом перевозить крупногабаритные вещи. Наземная парковка позволит вам без проблем оставлять автомобиль рядом с домом. Квартира расположена в районе с развитой инфраструктурой. В шаговой доступности находятся школы, детские сады, клиники и магазины, что делает это место удобным для проживания семей с детьми. Транспортная доступность также на высоте, благодаря чему можно быстро добраться до любой точки города. Продажа квартиры осуществляется по договору купли-продажи. Возможна ипотека, что значительно расширяет финансовые возможности потенциальных покупателей. Квартира без обременений, что облегчает процесс покупки. Приглашаем вас на просмотр! Записывайтесь, чтобы лично оценить все преимущества этой квартиры и принять важное решение о приобретении вашего нового жилья.
1/10
9 500 000 ₽
3-к, Амурская, 102
64 м² · Этаж 2 из 5
Построен в 1981
Продаётся просторная 3-комнатная квартира в самом центре города! О квартире: - Расположение: центр города, ул. Амурская Театральная, кирпичный дом - Этаж: 2-й (всего 8 квартир в подъезде - по 2 на этаже, камерная атмосфера) - Планировка: * Кухня-гостиная + большая лоджия на север * 2 отдельные спальни на юг * Раздельный санузел - Ремонт: Эконом-отделка (есть потенциал для модернизации) - Дополнительно: Установлен водонагреватель Преимущества: Идеальная локация - центр города, всё в шаговой доступности Простор и свет - южные спальни и большая лоджия Тихий камерный дом - мало соседей, уютная атмосфера Универсальность - подходит как для жизни семьи так и выгодной сдачи в аренду Отличный вариант для тех, кто ищет светлую квартиру в центре с потенциалом для создания идеального жилья или стабильного инвестиционного актива! P.S. Квартира готова к заселению. Документы в порядке. Собственник настроен на сделку. Звоните - назначим просмотр! Компания ''Этажи'' обеспечивает полное юридическое сопровождение сделки. Помощь в оформлении и получении ипотеки. Моя команда: 9 юристов, 3 ипотечных брокера, специалист МФЦ, страховой брокер, 7 специалистов по оценке недвижимости, сотрудничаю со всеми агентствами недвижимости, в работе со всеми банками России. Дополнительно оплачивается комиссия с покупателя. Код пользователя: 135310 Номер в базе: 10846502
1/22
4 500 000 ₽
1-к, пос. Радиоцентр, 7
40 м² · Этаж 3 из 3
Построен в 1982
Продается просторная однокомнатная квартира площадью 40,8 кв.м в экологически благоприятном районе города. До микрорайона всего 5 минут! Объект отличается рациональной планировкой: большая светлая комната позволяет легко организовать отдельные зоны для отдыха и работы, а кухня свободно вмещает обеденную группу. Помещения теплые, с хорошим естественным освещением. Санузел совмещенный, отделан практичными влагостойкими панелями. Квартира оборудована кондиционером. К объекту прилагается кладовое помещение площадью 5-6 кв.м в сухом подвале дома, что решает вопрос хранения. Дополнительным преимуществом является наличие благоустроенной придомовой территории c парковочными местами. Дополнительным приятным бонусом является небольшой огородик вблизи дома. Район обладает развитой инфраструктурой с магазинами, аптеками и детскими садами в шаговой доступности, транспортное сообщение позволяет быстро добраться до центра. Это оптимальное предложение для комфортного проживания с продуманной организацией пространства и всеми необходимыми удобствами. Звоните!!! Дополнительно оплачивается комиссия с покупателя. Код пользователя: 9577 Номер в базе: 10827051
1/16
11 500 000 ₽
3-к, Ленина, 55
59 м² · Этаж 9 из 9
Построен в 1995
Продается просторная трехкомнатная квартира с качественным современным ремонтом, готовой меблировкой и техникой для комфортного проживания. Планировка с изолированными комнатами и окнами на две стороны обеспечивает отличную инсоляцию и тишину: спальни выходят на ухоженный двор с детской и спортивной площадками, а гостиная — на улицу. В отделке использованы практичные материалы: натяжные потолки, дорогая плитка в санузле, новое остекление ПВХ и утепленная лоджия. Дополнительный комфорт создают система теплого пола и новая входная металлическая дверь. Инфраструктура района полностью сформирована: в шаговой доступности расположены школа, детский сад, магазины и остановки общественного транспорта. Объект находится в отличном состоянии и не требует дополнительных вложений, что позволяет заселиться сразу после сделки. Это предложение сочетает выгодное расположение, готовность к проживанию и потенциал для долгосрочных инвестиций в недвижимость. Работая с компанией ''Этажи'' вы получаете юридическое сопровождение. Ждем звонка и встречи с вами. Дополнительно оплачивается комиссия с покупателя. Код пользователя: 192665 Номер в базе: 10829544
1/3
6 064 060 ₽
1-к, Заводская, 4/9
31 м² · Этаж 8 из 14
Новостройка, сдана
Продаётся студия в сданном доме (Литер 1, этап 1.1), срок сдачи: IV-кв. 2025, общей площадью 31.78 кв.м., на 8 этаже. ''Лазурный берег'' расположился прямо на берегу большой реки, на участке изрезанной, неправильной формы, что в итоге становится преимуществом: создался живописный рисунок улиц с изогнутыми линиями, и любая прогулка превращается в интересное времяпрепровождение. На каждом повороте взгляду открываются новые картины: этому способствуют и разноуровневые дома, и необычные фасадные элементы, и архитектурный декор. Это стало еще одной отличительной чертой жилого комплекса ''Лазурный берег''. В ''Лазурном берегу'' дворы полностью закрыты для машин. Доступ автомобилей невозможен, а потому во внутреннем пространстве комплекса есть много места для людей: здесь можно спокойно играть и заниматься спортом. В случае необходимости во двор сможет въехать только специальная техника - пожарная машина или машина скорой помощи. Для машин предусмотрен комплекс наземных паркингов. Инфраструктурные объекты и точки интереса рассредоточены по всей территории жилого комплекса. Таким образом, жители домов с коммерческими площадями не будут страдать от большого потока покупателей, а у всех жителей всегда будет повод пройтись разными маршрутами. Жилой комплекс будет оснащен инфраструктурой современного города. Не нужно выезжать за пределы ''Лазурного берега'', чтобы отдать ребенка в детский сад, сходить в парикмахерскую, купить букет цветов или отметить семейное торжество. Такая автономность особенно важна для семей с детьми и родителями-пенсионерами. Практически во всех жилых комплексах эконом-сегмента предусмотрена инфраструктура для детей (игровые площадки). На ''Лазурном берегу'' имеются большие площади для неспешных прогулок, а также романтические бульвары, которые дают возможность жителям отдыхать, в полной мере пользуясь уникальным расположением жилого комплекса на берегу реки. Во-первых, в жилых комплексах, спроектированных по этим принципам, есть ярко выраженный центр - в ''Лазурном берегу'' это набережная Зеи, сформированная как пешеходная зона, с велосипедными дорожками, местами отдыха украшенная ротондами и беседками. Во-вторых, в них представлены различные типы домов и жилье на очень разный кошелек и вкус, так чтобы и молодые, и пожилые, и состоятельные, и небогатые смогли приобрести нужную им квартиру. В-третьих, школа располагается так, чтобы дети могли идти домой пешком, а детские площадки расположены в шаговой доступности от дома. В четвертых, в кварталах созданы сразу несколько пешеходных и автомобильных дорог, что позволяет равномерно распределить уличное движение на разных направлениях. Все это позволяет сделать ''Лазурный берег'' неповторимым, уникальным и комфортным для жизни районом Благовещенска. В жилом комплексе не будет ни одного повторяющегося дома. Все фасады разные за счет нескольких оттенков кирпича и натуральной штукатурки (светло-серый, бежевый, терракотовый, желтый, даже синий), разнообразного рисунка окон и декоративных элемен
1/3
9 238 500 ₽
2-к, Заводская, 4/9
61 м² · Этаж 8 из 14
Новостройка, сдана
Продаётся 2-комнатная квартира в сданном доме (Литер 1, этап 1.1), срок сдачи: IV-кв. 2025, общей площадью 61.59 кв.м., на 8 этаже. ''Лазурный берег'' расположился прямо на берегу большой реки, на участке изрезанной, неправильной формы, что в итоге становится преимуществом: создался живописный рисунок улиц с изогнутыми линиями, и любая прогулка превращается в интересное времяпрепровождение. На каждом повороте взгляду открываются новые картины: этому способствуют и разноуровневые дома, и необычные фасадные элементы, и архитектурный декор. Это стало еще одной отличительной чертой жилого комплекса ''Лазурный берег''. В ''Лазурном берегу'' дворы полностью закрыты для машин. Доступ автомобилей невозможен, а потому во внутреннем пространстве комплекса есть много места для людей: здесь можно спокойно играть и заниматься спортом. В случае необходимости во двор сможет въехать только специальная техника - пожарная машина или машина скорой помощи. Для машин предусмотрен комплекс наземных паркингов. Инфраструктурные объекты и точки интереса рассредоточены по всей территории жилого комплекса. Таким образом, жители домов с коммерческими площадями не будут страдать от большого потока покупателей, а у всех жителей всегда будет повод пройтись разными маршрутами. Жилой комплекс будет оснащен инфраструктурой современного города. Не нужно выезжать за пределы ''Лазурного берега'', чтобы отдать ребенка в детский сад, сходить в парикмахерскую, купить букет цветов или отметить семейное торжество. Такая автономность особенно важна для семей с детьми и родителями-пенсионерами. Практически во всех жилых комплексах эконом-сегмента предусмотрена инфраструктура для детей (игровые площадки). На ''Лазурном берегу'' имеются большие площади для неспешных прогулок, а также романтические бульвары, которые дают возможность жителям отдыхать, в полной мере пользуясь уникальным расположением жилого комплекса на берегу реки. Во-первых, в жилых комплексах, спроектированных по этим принципам, есть ярко выраженный центр - в ''Лазурном берегу'' это набережная Зеи, сформированная как пешеходная зона, с велосипедными дорожками, местами отдыха украшенная ротондами и беседками. Во-вторых, в них представлены различные типы домов и жилье на очень разный кошелек и вкус, так чтобы и молодые, и пожилые, и состоятельные, и небогатые смогли приобрести нужную им квартиру. В-третьих, школа располагается так, чтобы дети могли идти домой пешком, а детские площадки расположены в шаговой доступности от дома. В четвертых, в кварталах созданы сразу несколько пешеходных и автомобильных дорог, что позволяет равномерно распределить уличное движение на разных направлениях. Все это позволяет сделать ''Лазурный берег'' неповторимым, уникальным и комфортным для жизни районом Благовещенска. В жилом комплексе не будет ни одного повторяющегося дома. Все фасады разные за счет нескольких оттенков кирпича и натуральной штукатурки (светло-серый, бежевый, терракотовый, желтый, даже синий), разнообразного рисунка окон и декор
1/7
6 000 000 ₽
1-к, Высокая, 63
29 м² · Этаж 8 из 14
Новостройка, сдана
Продаётся светлая студия 30 м² с высокими потолками в центре города! О квартире: - Площадь: 29,7 м², 8/14 этаж (дом от надёжного застройщика) - Потолки: 2,80 м - ощущение простора и свободы - Окна: на запад - яркие закаты, обилие естественного света и прекрасный вид на город - Ремонт: чистовая отделка - можно адаптировать под свой вкус Преимущества: Дом - современная планировка, качественные материалы Расположение - всё под рукой: школы, кафе, бизнес-центры, транспортная развязка Высокие потолки - возможность создать стильный интерьер с мезонином или сложным освещением Идеальная инвестиция - лёгкая сдача в аренду или выгодная перепродажа Идеально для тех, кто ценит хорошее расположение, свет и современное качество! P.S. Квартира готова к покупке - осталось только ваше решение. Звоните, чтобы увидеть! Компания ''Этажи'' обеспечивает полное юридическое сопровождение сделки. Помощь в оформлении и получении ипотеки. Моя команда: 9 юристов, 3 ипотечных брокера, специалист МФЦ, страховой брокер, 7 специалистов по оценке недвижимости, сотрудничаю со всеми агентствами недвижимости, в работе со всеми банками России. Дополнительно оплачивается комиссия с покупателя. Код пользователя: 135310 Номер в базе: 9647546
1/17
8 500 000 ₽
2-к, Шимановского, 5
50 м² · Этаж 1 из 5
Построен в 1986
Продаётся уютная 2-комнатная квартира в самом центре, рядом с Педагогическим Университетом! Расположение: - Район Педагогического университета - престижно и удобно - 1 этаж - идеально для семей с детьми, пожилых людей и любителей быстрого доступа на улицу - Окна на запад и восток - солнце весь день О квартире: - Площадь: 50 м² - просторно и функционально - Ремонт: отличный, с качественной чистовой отделкой - Техника: вся бытовая техника остаётся - заезжайте и живите! - Лоджия: большая, остеклённая - дополнительное пространство для отдыха Преимущества: Центр города - всё рядом: парки, кафе, транспорт, университет Первый этаж - не зависит от лифта, удобно для прогулок с питомцами Ремонт и техника - не нужно тратиться на обустройство Лоджия - место для утреннего кофе или вечерних посиделок Идеально для студентов, молодой семьи или инвестиции - локация и качество говорят сами за себя! P.S. Квартира готова к покупке - осталось только ваше решение. Звоните, чтобы увидеть! Компания ''Этажи'' обеспечивает полное юридическое сопровождение сделки. Помощь в оформлении и получении ипотеки. Моя команда: 9 юристов, 3 ипотечных брокера, специалист МФЦ, страховой брокер, 7 специалистов по оценке недвижимости, сотрудничаю со всеми агентствами недвижимости, в работе со всеми банками России. Дополнительно оплачивается комиссия с покупателя. Код пользователя: 135310 Номер в базе: 9638415
1/14
9 300 000 ₽
1-к, Артиллерийская, 35
45 м² · Этаж 3 из 9
Построен в 2018
Продается уютная однокомнатная квартира в кирпичном доме. Описание объекта: Общая площадь: 45,1 м² Этаж: 3/9 Состояние: Выполнен свежий, качественный ремонт. Вся мебель и техника новые. Коммуникации: Все инженерные системы и электропроводка полностью заменены. Квартира очень теплая. Дополнительно: Имеется удобный застекленный балкон. Юридическая чистота: Обременений нет, прописан только собственник. Возможна покупка в ипотеку. Инфраструктура: Район с развитой инфраструктурой. В шаговой доступности вы найдете: - Магазины, супермаркеты и торговые центры - Школы, детские сады и поликлиники - Остановки общественного транспорта - Кафе, аптеки, банки и многое другое Преимущества: Отличный ремонт: Не требует вложений, полностью готова к заезду. Удачная планировка: Уютное и функциональное пространство. Огромная кухня-гостиная. Сторона света - солнечная, дома всегда тепло и уютно. Выгодное расположение: Развитая инфраструктура и транспортная доступность. Безопасность: Новые коммуникации и остекленный балкон. Чистота сделки: Отсутствие обременений и прозрачность сделки для покупателя. Дополнительно оплачивается комиссия с покупателя. Код пользователя: 193589 Номер в базе: 10423597
1/22
9 000 000 ₽
2-к, Строителей, 70
68 м² · Этаж 8 из 10
Построен в 2015
Продам ШИКАРНУЮ, УХОЖЕННУЮ, УЮТНУЮ 2-ух комнатную квартиру. 2-ух комнатная квартира в спальном районе Этаж - восьмой. Площадь 68,7 кв. м Площадь с лоджией 71 Кухня 12,5 кв. м Лоджия застекленная Комната 20,6 кв. м Спальня 17,2 Комнаты раздельные, Санузел раздельный, кафель Окна металло-пластиковые Плита электро Батареи - биметалл Квартира расположена в развивающемся спальном районе города. Новая застройка. Дом кирпичный, 2019 год постройки. Квартира теплая, светлая на 2 стороны. Застекленная лоджия обращена на юг, высокий цоколь. Вид на улицу и во двор. Все окна метало-пластиковые. Квартира очень теплая. Широкие метровые подоконники. Натяжные потолки, в прихожей большая гардеробная, вторая гардеробная в спальне.При продаже остается мебель. В квартире выполнен современный ремонт качественными материалами. Ванная комната отделана хорошим кафелем. Качественная сантехника. В подъезде имеется кладовая размерами 2,5х1,5 м. Подъезд очень чистый, влажная уборка еженедельно. Двор и подъезды оборудованы камерами наблюдения, круглосуточно онлайн доступ. Во дворе детская площадка, газон. Большая парковка, более 1 машиноместа на квартиру. Рядом магазин ''Авоська'', ''Серышевский'', аптеки, салоны, поликлиника. Строится новый торговый центр. В 10-ти минутах ходьбы школа 15, в 3-ех минутах ходьбы Медицинский колледж и Колледж транспорта и дорожного хозяйства, новый сквер, спортивные и детские площадки. Транспорт во все части города, до остановки пешком 3 минуты, интервал движения 5-7 минут. Удобная дорожная развязка, хоть в центр города, хоть за город (Зейский мост, Новотроицкое шоссе, Свободный). В квартире есть все для комфортного проживания. Заезжай и живи Дополнительно оплачивается комиссия с покупателя. Код пользователя: 164544 Номер в базе: 10418850
1/22
10 800 000 ₽
2-к, Шимановского, 82
58 м² · Этаж 16 из 16
Построен в 2018
Предлагаем к продаже отличную 2кк с современным, качественным ремонтом. Квартира находится по адресу: ул. Шимановского, 82 О ДОМЕ: -дом кирпичный, год постройки 2018 год -чистый и аккуратный подъезд -двор оборудован детской, спортивной площадками -застройщик АНК -предусмотрена большая парковка и закрытый двор для вашего удобства -видеонаблюдение по периметру и в подъезда -Автоматические ворота. О КВАРТИРЕ: -квартира расположена на 16 этаже -площадь квартиры 58.1 м² -большая застекленная лоджия -в квартире сделан очень качественный ремонт в современном стиле -оптимизированное пространство для хранения. ИНФРАСТРУКТУРА: Дом расположен в районе с развитой инфраструктурой. В пешей доступности находятся: детская областная больница, магазины, аптеки, ТЦ Мега, ТЦ Ледяной, автовокзал. Дополнительно оплачивается комиссия с покупателя. Код пользователя: 131424 Номер в базе: 10423436
1/20
6 500 000 ₽
3-к, 50 лет Октября, 142
67 м² · Этаж 6 из 9
Построен в 1998
Продается квартира 67 кв.м. Дом панельный 1998 г. постройки, расположен район КПП, ул. 50 лет Октября д 142, 6/10 этаж. Квартира требует ремонта, мебель отсутствует. Лоджия, раздельный санузел, окна выходят и во двор и на улицу, солнечная сторона. В шаговой доступности супермаркеты, поликлиника, аптеки, автобусная остановка. Во дворе детская и спортивная площадка, открытая парковка. !!! Квартира под ремонт — это не хаос, а начальная точка большого пути. Её грубый и неприглядный вид скрывает в себе возможность создать идеальное пространство с нуля, полностью соответствующее вашим желаниям и потребностям. Дополнительно оплачивается комиссия с покупателя. Код пользователя: 192718 Номер в базе: 10402767
1/12
8 450 000 ₽
2-к, Студенческая, 28
49 м² · Этаж 5 из 5
Построен в 1991
Двухкомнатная квартира общей площадью 49,6 кв. м расположена на пятом этаже панельного дома в центре микрорайона. Планировка отличается практичностью: две изолированные комнаты площадью 16,7 и 11,3 кв. м обеспечивают приватность, а кухня в 7 кв. м позволяет комфортно организовать пространство для приготовления и приема пищи. Высота потолков 2,53 метра создает ощущение простора. Ориентация окон на запад и восток обеспечивает равномерное естественное освещение в течение дня. В квартире выполнен аккуратный косметический ремонт, санузел раздельный и полностью облицован кафелем, установлен бойлер для бесперебойного горячего водоснабжения. Балкон застеклен, что увеличивает его функциональность в любое время года. Квартира готова к проживанию, рассматриваются различные варианты расчета, возможен торг. Дополнительно оплачивается комиссия с покупателя. Код пользователя: 20633 Номер в базе: 10154896
1/6
10 100 000 ₽
2-к, Игнатьевское шоссе, 10/2
62 м² · Этаж 2 из 14
Построен в 2024
Арт. 91881675. 2-комнатная квартира в новом современном жилом комплексе. Отличный вариант для инвестиций, комфортного проживания. Характеристики квартиры: Площадь: 62,1 м² (просторная кухня и изолированная спальня). Этаж: Комфортный 2 этаж (независимость от лифта, безопасно для детей/пожилых). Дом: Кирпичный, сдан в 2024 году. Состояние: Без отделки (свобода под ваши дизайнерские решения). Инфраструктура: Жилой комплекс расположен в одном из самых динамично развивающихся районов города. Транспорт: 5 минут пешком до остановки автобуса. Магазины: В шаговой доступности супермаркеты, торговые центры. Для семьи: Детский сад, школа, художественная школа — в 10 минутах ходьбы.
1/15
7 500 000 ₽
1-к, Строителей, 70
40 м² · Этаж 2 из 10
Построен в 2015
В продаже 1-комнатнатная квартира Квартира площадью 40,2 кв. м. Плюс застекленная лоджия. Квартира расположена на втором этаже 10-этажного кирпичного дома 2015 года постройки. Квартира с хорошим экономным ремонтом. Кухня 13,1 кв. м. Окна выходят на южную сторону. Квартира очень светлая, теплая. Санузел совмещен. Дом находится в отличном состоянии и оснащен как грузовым, так и пассажирским лифтами, что обеспечивает удобство при транспортировке тяжестей и комфортное передвижение. На территории имеется наземная парковка, что исключает проблемы с поиском места для автомобиля. Инфраструктура: Образовательные учреждения: Медицинский колледж ,Амурский колледж транспорта и дорожного хозяйства, Детский сад 35, корпус 1, Центр подготовки детей к школе ''А+Б'' Магазины и продуктовые точки. Медицинские учреждения (Детская поликлиника 2) Салоны красоты, Аптеки Детская и спортивная площадки во дворе дома, Охраняемая парковка и автобусная развязка рядом. Дополнительно оплачивается комиссия с покупателя. Код пользователя: 131424 Номер в базе: 11794607
1/6
7 350 000 ₽
1-к, Игнатьевское шоссе, 10/2
42 м² · Этаж 1 из 14
Построен в 2024
Арт. 91759370. 1-комнатная квартира в новом современном жилом комплексе. Отличный вариант для инвестиций, комфортного проживания. Характеристики квартиры: Площадь: 42,5 м² (просторная кухня и изолированная спальня). Этаж: Удобный 1 этаж (независимость от лифта, безопасно для детей/пожилых). Дом: Кирпичный, сдан в 2024 году. Состояние: Без отделки (свобода под ваши дизайнерские решения). Инфраструктура: Жилой комплекс расположен в одном из самых динамично развивающихся районов города. Транспорт: 5 минут пешком до остановки автобуса. Магазины: В шаговой доступности супермаркеты, торговые центры. Для семьи: Детский сад и школа — в 10 минутах ходьбы.
1/15
8 950 000 ₽
1-к, Шевченко, 70/2
47 м² · Этаж 8 из 10
Построен в 2013
Заголовок: Угловая большая однокомнатная квартира, которая может стать двушкой при правильном зонирование! Продается теплая, светлая квартира в тихом центре (Шевченко/Октябрьская). Дом от застройщика Мегатэк во дворе — никакого шума от машин, только уют и детская площадка под окнами. Главная ''фишка'' — ПЕРЕПЛАНИРОВКА: В комнате ДВА окна (угловая). Используя площадь лоджии, можно легко превратить квартиру в полноценную двушку! Готовое решение для расширения жилплощади. Почему стоит купить: Свет и вид: Жилая комната очень светлая. Окна выходят на две стороны: одно на Октябрьскую (захватывающий ночной вид на огни Китая ), второе окно комнаты и кухни — в тихий двор на Шевченко. Ремонт без хлопот: Установлены натяжные потолки, квартира теплая (проверено). Инфраструктура: Закрытый двор — рай для родителей: детская площадка прямо под окнами. Машины не ездят, дети в безопасности. Чистая сделка: Квартира без обременений, никто не прописан. Готово к продаже. Идеальный вариант для семьи или инвестиций. Звоните, покажут в любое удобное время! Дополнительно оплачивается комиссия с покупателя. Код пользователя: 194444 Номер в базе: 10886969
1/20
6 460 000 ₽
1-к, Связной переулок, 4
37 м² · Этаж 9 из 14
Новостройка, сдана
Здравствуйте, мой потенциальный покупатель!!! Дочитайте это объявление до конца, чтобы не упустить важную информацию - это займет всего несколько минут! За свои средства предусмотрен торг Местоположение: Амурская область, г. Благовещенск, пересечение улицы Чайковского и переулок Связной, 4. Жилой комплекс Зейский бульвар. Инфраструктура: Школа 17, детский сад 40, берег реки Зея, эллинг для малых судов, Аргон, ГлобалТек, Дизель моторс, Спичфабрика, СтатусВент, Стоматология, сыроварня, Детская поликлиника 2, почта, баня. Транспортная доступность: автобусы: 2, 2а, 3. Квартира: 1 комнатная квартира современной планировки, сан узел совмещенный, окна выходят на запад, из кухни выход на лоджию, в коридоре есть место под гардеробную комнату. Лоджия застекленная. Площадь квартиры (с холодными помещениями) 37,10 кв.м., Площадь квартиры (без холодных помещений) 34,00 кв.м., Площадь кухни 10,60 кв.м, Площадь жилая 12,10 кв.м., Площадь холла 6,90 кв.м., сан узел совмещенный 4,00 кв.м., лоджия 6,00 кв.м. Окна на восток, вид на Зею. Дом сдан в декабре 2025 года. Описание здания: Дом кирпичный, 14 этажный, одноподъездный. 2 грузо пассажирских лифта, 2 входа в подъезд. В доме установлены пассажирские лифты ТWJ в сочетании с немецкой технологией KOYO Elevator использует высоко интегрированную компьютерную интеллектуальную систему управления и 32- разрядное микрокомпьютерное управление с низким электропотреблением, которое всегда проходит через концепцию проектирования высокой эффективности, энергоснабжения и высокого качества, с высоко производительной конфигурацией, отличной производительностью и мощными функциями. Применяемая витражная система ограждения лоджий и балконов из стекла с зеркальным тонированием не только украшает дом и служит надежной защитой и повышает освещенность. Установка энергоэффективного с низкими значениями шумов оборудования в технических помещениях (индивидуальный тепловой пункт, повысительная насосная станция). Использование разнообразного оборудования детских игровых площадок высокого качества обеспечивают безопасность для детей, имеющего сертификат полученный в международном центре TUV соответствие европейским нормам. Применяемое бесшовное резиновое покрытие на спортивных площадках имеющие ряд преимуществ в первую очередь травма безопасность. В рамках комплекса произведено красивое благоустройство территории и озеленение, установлены яркие развивающие детские и спортивные площадки. Предусмотрены вместительные парковки и гаражные комплексы. А так же планируется строительство детского сада, зон отдыха. Инженерные сети: теплоснабжение центральное, водоснабжение центральное, водоотведение центральное. Отделка квартир: Предчистовая. Высота потолков в квартирах: 2,75 м, стены оштукатурены, выполнена стяжка пола, электрика, установлена входная дверь, выполнена сантехническая разводка. Установлены водо и электро счетчики, МП окна, трехкамерные, лоджии застекленные.
1/24
16 000 000 ₽
3-к, Шафира, 62/2
81 м² · Этаж 4 из 5
Построен в 2013
Продаётся просторная 3-х комнатная квартира. Шафира 62/2, дом кирпичный, застройщик АО ''Амурстрой''. Чистый подъезд, просторная детская площадка, парковка. Дом находятся под видеонаблюдением. Квартира расположена на две стороны. Светлая, уютная, с очень хорошей планировкой. Выполнен ремонт по дизайн-проекту с применением дорогостоящих материалов. - просторная гостиная с кухонной зоной 33 кв. м - две изолированные комнаты 12.8 кв. м и 20.9 кв. м - сан.узел совмещённый, тёплый пол. - большая спальная с гардеробной. - уютная детская комната. Квартира полностью укомплектована дорогой мебелью и техникой. Есть кондейка в подвале и на этаже. ИНФРАСТРУКТУРА: Дом расположен в районе с развитой инфраструктурой. В пешей доступности находятся: Детская поликлиника 2, магазины, аптеки, Детский сад 32, Школа 15, Амурский колледж транспорта и дорожного хозяйства, Амурский медицинский колледж, транспортная доступность. Район активно развивается. В этом году будет сдана престижная школа на 1200 мест. Дополнительно оплачивается комиссия с покупателя. Код пользователя: 131424 Номер в базе: 11806092
1/16
6 460 000 ₽
1-к, Связной переулок, 4
37 м² · Этаж 13 из 14
Новостройка, сдана
Здравствуйте, мой потенциальный покупатель!!! Дочитайте это объявление до конца, чтобы не упустить важную информацию - это займет всего несколько минут! Местоположение: Амурская область, г. Благовещенск, пересечение улицы Чайковского и переулок Связной, 4. Жилой комплекс Зейский бульвар. Инфраструктура: Школа 17, детский сад 40, берег реки Зея, эллинг для малых судов, Аргон, ГлобалТек, Дизель моторс, Спичфабрика, СтатусВент, Стоматология, сыроварня, Детская поликлиника 2, почта, баня. Транспортная доступность: автобусы: 2, 2а, 3. Квартира: 1 комнатная квартира современной планировки, сан узел совмещенный, окна выходят на запад, из кухни выход на лоджию, в коридоре есть место под гардеробную комнату. Лоджия застекленная. Площадь квартиры (с холодными помещениями) 37,10 кв.м., Площадь квартиры (без холодных помещений) 34,00 кв.м., Площадь кухни 10,60 кв.м, Площадь жилая 12,10 кв.м., Площадь холла 6,90 кв.м., сан узел совмещенный 4,00 кв.м., лоджия 6,00 кв.м. Окна на восток, вид на Зею. Дом сдан в декабре 2025 года. Описание здания: Дом кирпичный, 14 этажный, одноподъездный. 2 грузо пассажирских лифта, 2 входа в подъезд. В доме установлены пассажирские лифты ТWJ в сочетании с немецкой технологией KOYO Elevator использует высоко интегрированную компьютерную интеллектуальную систему управления и 32- разрядное микрокомпьютерное управление с низким электропотреблением, которое всегда проходит через концепцию проектирования высокой эффективности, энергоснабжения и высокого качества, с высоко производительной конфигурацией, отличной производительностью и мощными функциями. Применяемая витражная система ограждения лоджий и балконов из стекла с зеркальным тонированием не только украшает дом и служит надежной защитой и повышает освещенность. Установка энергоэффективного с низкими значениями шумов оборудования в технических помещениях (индивидуальный тепловой пункт, повысительная насосная станция). Использование разнообразного оборудования детских игровых площадок высокого качества обеспечивают безопасность для детей, имеющего сертификат полученный в международном центре TUV соответствие европейским нормам. В рамках комплекса будет произведено красивое благоустройство территории и озеленение, установлены яркие развивающие детские и спортивные площадки. Предусмотрены вместительные парковки и гаражные комплексы. А так же планируется строительство детского сада, зон отдыха. Инженерные сети: теплоснабжение центральное, водоснабжение центральное, водоотведение центральное. Отделка квартир: Предчистовая. Высота потолков в квартирах: 2,75 м, стены оштукатурены, выполнена стяжка пола, электрика, установлена входная дверь, выполнена сантехническая разводка. Установлены водо и электро счетчики, МП окна, трехкамерные, лоджии застекленные. Условия оплаты: Все виды платежей
  • 16
  • 17
  • 18
  • 19
  1. Недвижимость в Благовещенске
  2. Продажа
  3. Квартиры
  4. 1307 объявлений

Может быть полезно

Ипотека

Узнайте за 10 минут, какой кредит вам одобрят банки

Подбор риелтора

Риелтор поможет купить или продать любую недвижимость

Журнал

10 идей для обустройства ванной 10 идей для обустройства ванной
Как правильно написать объявление о сдаче квартиры Как правильно написать объявление о сдаче квартиры
Арктический гектар: как бесплатно получить участок в 2026 году Арктический гектар: как бесплатно получить участок в 2026 году
Подключение воды к частному дому: как выбрать оптимальный вариант и какой порядок действий Подключение воды к частному дому: как выбрать оптимальный вариант и какой порядок действий
Фейковая аренда: как распознать мошенничество Фейковая аренда: как распознать мошенничество
Читать все статьи
По субъектам области
  • с. Чигири
  • Белогорский муниципальный округ
  • с. Ивановка
  • с. Тамбовка
  • Благовещенский район
  • Райчихинск
  • Благовещенск городской округ
  • с. Белогорье
  • Тында
  • Зея
  • Бурейский муниципальный округ
  • Шимановск

Некоторые материалы настоящего раздела могут содержать информацию, запрещенную для детей, не достигших шести лет.

Информация о возрастных ограничениях в отношении информационной продукции, подлежащая распространению на основании норм Федерального закона «О защите детей от информации, причиняющей вред их здоровью и развитию».

О компанииСправочный центрВакансии
© ООО «Н1.РУ»  Правила использования

Некоторые материалы настоящего раздела могут содержать информацию, запрещенную для детей, не достигших шести лет.

Информация о возрастных ограничениях в отношении информационной продукции, подлежащая распространению на основании норм Федерального закона «О защите детей от информации, причиняющей вред их здоровью и развитию».

Новостройки
Студии
Однокомнатные
Двухкомнатные
Трехкомнатные
Четырехкомнатные
Многокомнатные
Каталоги
Выделение цветом
Спецпредложение
Топ
Турбо
Вторичка
Однокомнатные
Комнаты
Студии
Коттеджи
Дома
Аренда недвижимости
Квартиры
Комнаты
Студии
Коттеджи
Дома
Города
Архангельск
Екатеринбург
Красноярск
Новосибирск
Омск
Пермь
Тюмень
Челябинск
Все города
Карта сайта
 Купите квартиру в Благовещенске - 1 307 объявлений в каталоге жилой недвижимости на N1. Средняя цена продажи или покупки жилья составляет 10,6 млн ₽. Покупайте квартиры недорого на сайте N1.ru.