Выгодное предложение для вашего бизнеса в пгт. Серышево!
Предлагается к продаже коммерческое помещение, расположенное по адресу: ул. Куйбышева, 29. Это удобное место для развития вашего дела в активно развивающемся посёлке!
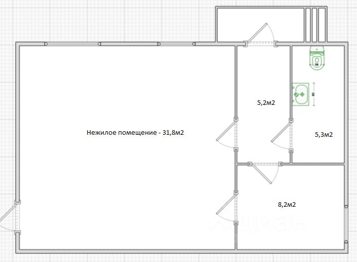
Локация:Помещение является пристройкой к 5-этажному кирпичному дому, построенному в 1982 году. Это обеспечивает стабильный поток потенциальных клиентов.Удобная транспортная доступность: всего 25-30 минут на автомобиле до города Белогорск. Расширьте горизонты своего бизнеса!Площадь и планировка:Общая площадь 50,5 м, полезная площадь 31,8 м.Высота потолков 2,85 м создает ощущение простора и свободы.В наличии санузел и подсобное помещение для комфортной работы. Бонусы:Ранее помещение использовалось под магазин.
Выгодное предложение для вашего бизнеса в пгт. Серышево!
Предлагается к продаже коммерческое помещение, расположенное по адресу: ул. Куйбышева, 29. Это удобное место для развития вашего дела в активно развивающемся посёлке!
Локация:Помещение является пристройкой к 5-этажному кирпичному дому, построенному в 1982 году. Это обеспечивает стабильный поток потенциальных клиентов.Удобная транспортная доступность: всего 25-30 минут на автомобиле до города Белогорск. Расширьте горизонты своего бизнеса!Площадь и планировка:Общая площадь 50,5 м, полезная площадь 31,8 м.Высота потолков 2,85 м создает ощущение простора и свободы.В наличии санузел и подсобное помещение для комфортной работы. Бонусы:Ранее помещение использовалось под магазин.Всё оборудование, которое вы видите на фотографиях, остаётся новому владельцу! Это отличная возможность начать свой бизнес практически сразу, без дополнительных затрат. Гибкие условия:Рассматривается обмен на квартиру или автомобиль. Ваши предложения приветствуются!Не упустите шанс приобрести коммерческое помещение с отличным потенциалом в удобном месте! Пишите прямо сейчас, чтобы узнать подробности и договориться о просмотре!