Дом, Стрелка, 35а Показать на карте
Белогорск
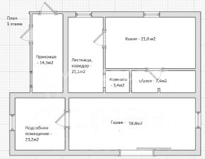
Продаётся дом с земельным участком район Гора, ул. СтрелкаДом построен в 2024 году и сейчас находится на стадии незавершённого строительства.Общая площадь 108,5 м, в том числе площадь гаража.Ленточный бетонный фундамент и кирпичные стены толщиной 85 см обеспечивают прочность и хорошую теплоизоляцию.Крыша покрыта металлочерепицей надёжное решение для климата.Частично установлены пластиковые окна (МПО).На данный момент коммуникации не подключены, требуется проведение водоснабжения, отопления и канализации.Земельный участок 7,5 соток, категория ИЖС. Участок ровный, без дополнительных построек чистая площадка для обустройства сада, зоны отдыха, хозяйственных блоков.Местоположение на ул. Стрелка в районе Гора обеспечивает удобный доступ к инфраструктуре для комфортного проживания.Почему выгодно рассмотреть этот вариант:- Качественный несущий каркас и толщина стен дают экономию на энергоэффективности и долговечность,- Незавершённый объект даёт возможность распланировать отделку в соответствии с вашими предпочтениями,- Участок 7,5 соток достаточная площадь для личного подсобного хозяйства, ландшафтного обустройства или возведения дополнительных сооружений.Все объекты, реклама которых осуществляется через Центр недвижимости и страхования Монополия, проходят тщательную проверку на юридическую чистоту документов и конкурентность рыночной цены. Специалисты агентства контролируют весь процесс от выбора объекта до завершения сделки. Все консультации по вопросам приобретения недвижимости, юридического оформления, ипотечного кредитования и страхования совершенно БЕСПЛАТНО! Не упустите шанс стать владельцем этого великолепной квартиры!Напишите мне с радостью покажу вам этот идеальный вариант для вашей семьи!
108 м2
1 этаж
Кирпич
- Показать контакты
- Добавить в избранное
108 м2
1 этаж
Кирпич
3 200 000
29 493 /м2
